Hier geht es zur Hühner-Info-Startseite  
Startseite InhaltsverzeichnisSuchen ForumChat
 

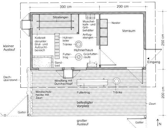
Stall für 12-15 Hühner

Diese Zeichnungen sind aus dem Buch "Hühner halten" von Beate und Leopold Peitz
mehr über dieses Buch

Bild grösser sehen

 

Bild grösser sehen

 

Bild grösser sehen

 

Diese Zeichnungen sind aus dem Buch "Hühner halten" von Beate und Leopold Peitz
mehr über dieses Buch

© huehner-info.de 2000-2023
Kontakt Impressum